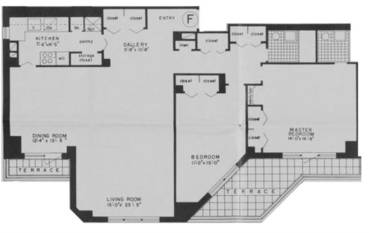
301 East 48th Street
Turtle Bay[Second Avenue & First Avenue]
Listing ID: 2146052
Zoom In       Zoom Out